GreenN8
  bordervertsmall bordervertcetre borderertr
GreenN8
CPZ 2010
CPZ FAQ
CPZ in Haringey
CPZ the cost
CPZ Green or Greed
CPZ follow the money
CPZ Document library
CPZ in the news
CPZ Have your say 2010

CPZ 2006
CPZ Your views 2006
Get involved 2006
 
 

 

 

 

 

 

border1

Gilmac Application Plans

All application documents are available from Haringey website

View of the proposed site


Panoramic view of the proposed application site

Sub station adjacent to the proposed site

Site Location and application plans
Click on any of plans below to enlarge |
or click here to download all as a pdf file (872kb)

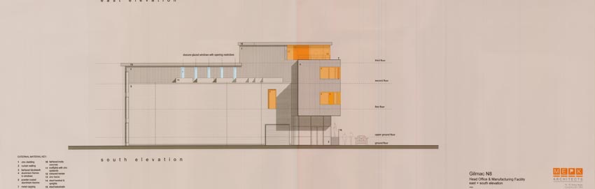
New amended plans submitted May 2006

In response to residents' concerns voiced in the Development Control Forum (DFC) the developer's agent submitted amendments to the plan drawings.

The changes are designed to mitigate the 'loss of privacy' and include obscured glazing to some (not all) of the windows on the west and south facing walls.

Obscure Glazing = the type of glass used for bathrooms

Blue coloured windows are obscured glazing
Orange coloured windows are unchanged and would probably be see through

West and North elevations

South elevation

All plan drawings can also be found on Haringey website

 

Plans submitted March 2006

 

24.5.06 | New amended plans submitted May 2006
In response to residents' concerns voiced in the Development Control Forum (DFC) the developer's agent submitted amendments to the plan drawings.

The changes are designed to mitigate the 'loss of privacy' and include obscured glazing to some (not all) of the windows on the west and south facing walls.

Obscure Glazing = the type of glass used for bathrooms

 

 

 

 

 

 

 

 

 

 

 

 

 

 
 

 

 

 

Site Design by CosmicHeartBeat.com  
eXTReMe Tracker

 


GreenN8:
Home | From the local pond | About GreenN8 | Get in touch | In the News | For the Press
GN8 Online Community: GN8 | GN8 User Guide
Local Campaigns: CPZ 2010 | CPZ 2006 | London Concrete | Gilmac
Planning: UDP Consultation | Planning Links
Resources
: Get involved | Local Groups | Links